kopilkaurokov.ru - сайт для учителей

Создайте Ваш сайт учителя Видеоуроки Олимпиады Вебинары для учителей

Лекция Организация работы горячего цеха

Нажмите, чтобы узнать подробности

В лекции опмсана организация работы горячего цеха, представлено оснащение оборудованием, посудой, инвентарем

Вы уже знаете о суперспособностях современного учителя?
Тратить минимум сил на подготовку и проведение уроков.
Быстро и объективно проверять знания учащихся.
Сделать изучение нового материала максимально понятным.
Избавить себя от подбора заданий и их проверки после уроков.
Наладить дисциплину на своих уроках.
Получить возможность работать творчески.

Просмотр содержимого документа
«Лекция Организация работы горячего цеха»

Организация работы горячего цеха. Общие требования, особенности организации

Горячие цехи организуются на предприятиях, выполняющих полный цикл производства. Горячий цех является основным цехом предприятия общественного питания, в котором завершается тех­нологический процесс приготовления пищи: осуществляется теп­ловая обработка продуктов и полуфабрикатов, варка бульона, при­готовление супов, соусов, гарниров, вторых блюд, а также произво­дится тепловая обработка продуктов для холодных и сладких блюд. Кроме того, в цехе приготовляются горячие напитки и выпекаются мучные кондитерские изделия (пирожки, расстегаи, кулебяки и др.) для прозрачных бульонов. Из горячего цеха готовые блюда посту­пают непосредственно в раздаточные для реализации потребителю.

Горячий цех занимает на предприятии общественного питания центральное место. В том случае, когда горячий цех обслуживает несколько торговых залов, расположенных на разных этажах, его целесообразно расположить на одном этаже с торговым залом, име­ющим наибольшее число посадочных мест. На всех других этажах должны быть раздаточные с плитой для жаренья порционных блюд и мармитами. Снабжение этих раздаточных готовой продукцией обеспечивается с помощью подъемников.

Горячий цех должен иметь удобную связь с заготовочными цехами, со складскими помещениями и удобную взаимосвязь с хо­лодным цехом, раздаточной и торговым залом, моечной кухонной посуды.

Блюда, изготовляемые в горячем цехе, различают по следую­щим основным признакам:

• виду используемого сырья — из картофеля, овощей и грибов; из круп, бобовых и макаронных изделий; из яиц и творога; из рыбы и морепродуктов; из мяса и мясных продуктов; из птицы, дичи, кролика и др.;

• способу кулинарной обработки — отварные, припущенные, тушеные, жареные, запеченные;

• характеру потребления — супы, вторые блюда, гарниры, напитки и др.;

• назначению — для диетического, школьного питания и др.;

• консистенции — жидкие, полужидкие, густые, пюреобразные, вязкие, рассыпчатые.

Блюда горячего цеха должны соответствовать требованиям го­сударственных стандартов, стандартов отрасли и предприятий, сбор­ников рецептур блюд и кулинарных изделий, технических условий и вырабатываться по технологическим инструкциям и картам, тех­нико-технологическим картам при соблюдении санитарных правил для предприятий общественного питания.




Производственная программа горячего цеха составляется на основании ассортимента блюд, реализуемых через торговый зал, ассортимента кулинарной продукции, реализуемой через буфеты и предприятия розничной сети (магазины кулинарии, лотки).

Микроклимат горячего цехаТемпература по требованиям организации труда не должна превышать 23 °С, поэтому более мощ­ной должна быть приточно-вытяжная вентиляция (скорость движе­ния воздуха — 1—2 м/с); относительная влажность — 60—70 %. Что­бы уменьшить воздействие инфракрасных лучей, выделяемых на­гретыми жарочными поверхностями, площадь плиты должна быть меньше в 45—50 раз площади пола.

Режим работы горячего цеха зависит от режима работы пред­приятия (торгового зала) и форм отпуска готовой продукции. Ра­ботники горячего цеха, чтобы успешно справиться с производствен­ной программой, должны начинать работу не позднее чем за 2 ч до открытия торгового зала.

; Горячий цех должен быть оснащен современным оборудова­нием: тепловым, холодильным, механическим и немеханическим: плитами, жарочными шкафами, пищеварочными котлами, элек­тросковородами, электрофритюрницами, холодильными шкафами, а также производственными столами и стеллажами.

В зависимости от типа и мощности предусматривается приме­нение в горячем цехе механического оборудования (универсальный привод П-П, машина для приготовления картофельного пюре).



Оборудование для горячего цеха подбирают по нормам оснаще­ния торгово-технологическим и холодильным оборудованием в соот­ветствии с типом и количеством посадочных мест в предприятии, ре­жимом его работы, максимальной загрузкой торгового зала в часы пик, а также формам обслуживания. Так, в ресторанах, где первые

блюда готовят небольшими партиями, меньше требуется стационар­ных пищеварочных котлов, чем в столовых, имеющих столько же по­садочных мест (табл. 14).

Таблица 14

Подбор оборудования для горячего цеха общедоступной столовой на 100 мест

Наименование оборудования

Тип

Еди­ница изме­рения

Производи­тельность, емкость, площадь в единицах измерения

Количе­ство оборудо­вания

Универсальный привод

П - II

шт.

 

Шкаф холодильный

ШХ-0,8

м3

0,8

 

Плита на электрическом обогреве 4-конфорочная секционная модули­рованная с жарочным шкафом

ПЭСМ-4Ш

м2

 

Плита кухонная 2-кон-форочная для непосред­ственного жаренья

ПЭСМ- 2

  м2

0,24

 

Котел пищеварочный

КПЭСМ-40

л

 

 

— « —

КПЭСМ-60

л

 

 

— « —

КПЭ-100

л

 

 

Сковорода с косвенным обогревом

СКЭ-0,3

м2

0,33

 

Шкаф жарочный двухсекционный

ШЖЭСМ-2

м2

0,194

 

Кипятильник непрерывного действия

КНЭ-100

л/ч

 

 

Весы настольные циферблатные

ВНЦ-2

кг

 

 

— « —

ВНЦ-10

кг

 

 

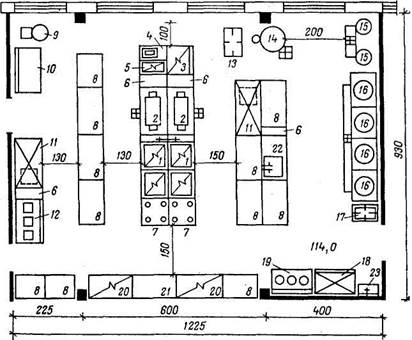
В горячем цехе для удобства организации процессов приготов­ления горячих блюд целесообразно использовать секционное моду­лированное оборудование, которое можно устанавливать островным способом, или организовывать несколько технологических линий — для приготовления бульонов и первых и вторых блюд; гарниров и соусов (рис. 19).

Рис. 19. Примерный план горячего цеха ресторана на 300 мест:

— плита электрическая четырехконфорочная ПЭСМ-4Ш; 2 — сковорода электрическая СЭСМ-0,5; 3— шкаф жарочный электрический; 4— фри-тюрница ФЭСМ-20; 5 — плита электрическая двухконфорочная для непос­редственного жаренья; 6— вставка к тепловому оборудованию; 7— мар­мит электрический МСЭСМ-50 для соусов; — стол производственный СП-1470; 9— универсальный привод ПГ-0,6; 10 — стол для установки средств малой механизации; 11 — стол охлаждаемый СОЭСМ-2; 12 — печь шашлычная; 13 — стеллаж передвижной; 14 — котел пищеварочный КПЭ-100; /5 — электрокипятильник КРНЭ-100Б; 16 — котел пищева­рочный КПЭСМ-60; 17— ванна передвижная ВПГСМ для промывки гарниров; 18 — шкаф холодильный ШХ-0,4М; 19 — прилавок-мармит для первых блюд; 20 — стойка раздаточная электрическая СРТЭСМ; 21 — стойка раздаточная СРСМ; 22 — стол со встроенной моечной ванной СМВСМ; 23 — раковина

Секционное модулированное оборудование экономит производ­ственную площадь на 5—7 %, повышает эффективность использова­ния оборудования, снижает утомляемость работников, повышает их трудоспособность. Оно снабжено индивидуальным вытяжным уст­ройством, удаляющим из цеха вредные газы, образующиеся при жа­ренье продуктов, что способствует созданию благоприятного микро­климата в цехе и улучшению условий труда.

Для рациональной организации рабочего места повара следует применять также секционные модулированные производственные столы и другое немеханическое оборудование. Это оборудование может применяться во всех доготовочных цехах (рис. 20).

Секция-стол с охлаждаемым шкафом и горкой СОЭСМ-3 применяется для приготовления порционных первых блюд (в емко­стях горки набор подготовленных необходимых продуктов); этот стол предназначен также для холодных цехов.

Секция-стол с охлаждаемым шкафом СОЭСМ-2 служит для оформления блюд, хранения полуфабрикатов, зелени в охлаждае­мом шкафу емкостью 0,28 м3.

Секция-стол со встроенной моечной ванной СМВСМ предназ­начен для доработки полуфабрикатов и зелени.

Секция-стол для установки средств малой механизации СММСМ имеет розетки подключенной электроэнергии.

Секции-вставки к тепловому оборудованию ВСМ-210 являются подсобными элементами в технологических линиях секционного модулированного оборудования. Длина секции — 210 и 420 мм.

Секции-вставки к тепловому оборудованию с краном-смеси­телем ВКСМ устанавливаются в технологических линиях для за­полнения водой пищеварочных наплитных котлов.




Получите в подарок сайт учителя

Предмет: Прочее

Категория: Прочее

Целевая аудитория: Прочее.
Урок соответствует ФГОС

Скачать
Лекция Организация работы горячего цеха

Автор: Бузюнова Валентина Алексеевна

Дата: 09.12.2025

Номер свидетельства: 678668


Получите в подарок сайт учителя

Видеоуроки для учителей


ПОЛУЧИТЕ СВИДЕТЕЛЬСТВО МГНОВЕННО

Добавить свою работу

* Свидетельство о публикации выдается БЕСПЛАТНО, СРАЗУ же после добавления Вами Вашей работы на сайт

Удобный поиск материалов для учителей

Проверка свидетельства